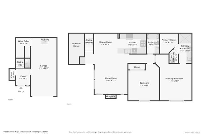
11330 Camino Playa Cancun #1

San Diego, CA 92124

$ 699,000

Price

2

Beds

2

Baths

1,090 Sq. Ft.

$641 / Sq. Ft.

4 Days On Market

Favorite

Share

Have You Been Pre-Qualified? Start Now

Listing provided by agent Lj Woodard BRE# 01446472 at One Percent Listing Group, Inc.

Last Updated: 4 days ago

STUNNING BELSERA CONDO – PRIME LOCATION NEAR MISSION TRAILS PRESERVE – LARGE BALCONY – GARAGE WITH DIRECT ACCESS TO HOME AND CARPORT PARKING! Welcome to this beautifully upgraded and freshly remodeled upper-level 2-bedroom, 2-bath home in the highly desirable Belsera community, located just steps from Mission Trails Preserve. Bright, spacious, and designed for modern living, this home combines elegant finishes, smart features, and everyday comfort. The open-concept layout features vaulted ceilings and expansive windows that fill the home with natural light, creating a bright and airy feel. The living room features a cozy gas fireplace with Birch wood logs and a $1,600 Samsung Frame TV, along with custom bamboo window treatments. The large second-story balcony offers the perfect space to relax and take in the peaceful surroundings. The kitchen is beautiful, featuring wood-finish cabinets, quartz countertops, a deep stainless steel chef’s sink with a bronze faucet, a low-profile vented microwave, custom lighting, and an LG refrigerator with a double pull-out freezer. The pull-out pantry shelves and abundant cabinetry make storage effortless. The spacious primary suite features vaulted ceilings and a sliding barn door that opens to a luxurious ensuite bathroom with a double vanity, a beautiful walk-in custom-tiled shower, and a large walk-in closet. Both bathrooms have been stylishly updated with modern fixtures and finishes. Additional features include a Blink camera doorbell with a smart DESLOC front lock that opens via fingerprint, code, fob, or Bluetooth. The attached garage with direct access to your home is fully finished with epoxy floors, mounted LG TV, overhead storage, and a stackable LG washer and dryer. The house also includes bronze hardware throughout, adding to the elevated designer feel. Recent upgrades include a new HVAC system, a new water heater, and new kitchen appliances. The elegant, warm oak LVP flooring ties everything together, creating a cohesive, sophisticated look. Belsera offers resort-style amenities, including two pools, spas, BBQ areas, volleyball courts, walking trails, and lush, park-like landscaping. Enjoy a lifestyle that blends tranquility and convenience—just minutes from freeways, schools, shopping, restaurants, and parks. This stunning home is San Diego living at its finest—modern, functional, and completely move-in ready. Conveys: 2 mounted TVs (Samsung Frame TV in the living room and LG TV in the garage. LG stackable washer and dryer, all kitchen appliances, all window covers, Camera doorbell, and smart door lock.

Show More
Property Type Condominium
Lot Size 87,770 sq. ft.
Year Built 1991
MLS # 250042299SD
Listing Type Active
Heating See Remarks, Forced Air
Cooling Central Air
Pool In Ground, Community
Laundry See Remarks, In Garage
Parking Assigned, Carport

Payment Calculator

40% Complete (success)
80% Complete (danger)
20% Complete
80% Complete (danger)
60% Complete (warning)
Principal and Interest
Property Taxes
Homeowners' Insurance
HOA Dues
Mortgage Insurance
Image Calculator Icon Customize Calculations | Compare Mortgage Rates

Property Details for: 11330 Camino Playa Cancun #1

Interior Features

Bathroom Information
  • 2 full baths
Laundry Information
  • See Remarks
  • In Garage
Fireplace Information
  • Living Room
Heating & Cooling
  • Central Air
  • See Remarks
  • Forced Air

Parking / Garage, Multi-Unit Information, Location Details

Parking Information
  • Assigned
  • Carport

Exterior Features

Pool & Spa Information
  • In Ground
  • Community

Property / Lot Details

Lot Information
  • Lot Size (Sq. Ft) 87,770
Property Information
  • Attached
  • Tax Parcel Number: 3735213136

Nearby Businesses

  • Grocery Stores
  • Drug Stores
  • Coffee Shops
  • Restaurants
  • Health & Medical
  • Fitness & Activity
  • Arts & Entertainment
  • Nightlife & Bars
    Browse all businesses in San Diego, CA, 92124

    Tour This Condo

    MONDAY

    27

    OCT

    TUESDAY

    28

    OCT

    WEDNESDAY

    29

    OCT

    THURSDAY

    30

    OCT

    FRIDAY

    31

    OCT

    SATURDAY

    1

    NOV

    SUNDAY

    2

    NOV

    Schedule A Tour
    Listing provided by agent Lj Woodard BRE# 01446472 at One Percent Listing Group, Inc.

    Last Updated: 4 days ago