1388 Kettner Boulevard #3502

San Diego, CA 92101

$ 2,825,000

Price

2

Beds

2

Baths

1,724 Sq. Ft.

$1,639 / Sq. Ft.

289 Days On Market

Favorite

Share

Have You Been Pre-Qualified? Start Now

Listing provided by agent Marc Lyman BRE# 01959445 at Pacific Sotheby's Int'l Realty.

Last Updated: 36 days ago

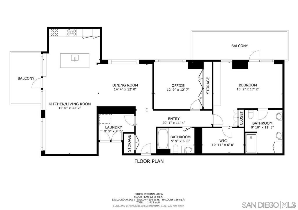
The 35th floor of the iconic Savina building is a perspective like no other. This exquisite condo offers a rare opportunity to experience luxury living at its finest. One of only eight penthouses in the renowned 36-floor building. Floor-to-ceiling windows frame sweeping views of the bay, ocean, city skyline, inland mountains, and beyond. The sleek kitchen is appointed with exceptional Gaggenau appliances and is enveloped by mesmerizing views. The thoughtfully designed layout features two private balconies, an open-concept living and dining space, and a spacious primary suite with a luxurious bathroom and a custom walk-in closet. Additional highlights include a dedicated laundry room, automated blinds, contemporary finishes, three assigned parking spaces, and a large storage unit. The residence has been meticulously cared for and only occasionally occupied. This is high-rise living elevated to extraordinary heights. Built in 2019 and one of downtown San Diego's premier addresses, Savina redefines modern sophistication with its exceptional amenities and unbeatable location. Residents enjoy a stunning pool and spa terrace, state-of-the-art fitness center, yoga studio, pet retreat, dog washing station, bike repair stands, and inviting social lounges. Just outside, vibrant Little Italy and the waterfront offer a dynamic mix of world-class dining, boutique shopping, outdoor activities, scenic sights, and cultural attractions. Whether you're seeking a serene retreat or active urban lifestyle, this penthouse is your gateway to the very best of San Diego. Two photos virtually staged Living in Downtown San Diego places you at the center of a thriving urban hub, where world-class experiences await at every turn. The historic charm of Little Italy, just outside Savina's beautiful lobby, offers a vibrant blend of celebrated restaurants, quaint cafés, art galleries, and the popular weekly Mercato Farmers' Market. The nearby waterfront invites leisurely strolls along the Embarcadero, with access to Seaport Village, the USS Midway Museum, and exciting events at the Rady Shell. With a dynamic nightlife, cultural festivals, and countless entertainment options, this location seamlessly blends energy and elegance, providing a lifestyle that is as active as it is refined.

Show More
Property Type Condominium
Year Built 2019
MLS # 250018754SD
Listing Type Active
Heating Natural Gas, Forced Air
Cooling Central Air, Electric
Pool Community
Laundry Electric Dryer Hookup, Individual Room, Inside
Parking Assigned

Payment Calculator

40% Complete (success)
80% Complete (danger)
20% Complete
80% Complete (danger)
60% Complete (warning)
Principal and Interest
Property Taxes
Homeowners' Insurance
HOA Dues
Mortgage Insurance
Image Calculator Icon Customize Calculations | Compare Mortgage Rates

Property Details for: 1388 Kettner Boulevard #3502

Interior Features

Bathroom Information
  • 2 full baths
Laundry Information
  • Electric Dryer Hookup
  • Individual Room
  • Inside
Interior Features
  • Balcony
  • Bar
  • Built-in Features
  • Dry Bar
  • High Ceilings
  • Living Room Balcony
  • Open Floorplan
  • Recessed Lighting
  • Stone Counters
  • Storage
Heating & Cooling
  • Central Air
  • Electric
  • Natural Gas
  • Forced Air

Parking / Garage, Multi-Unit Information, Location Details

Interior Information
  • Balcony
  • Bar
  • Built-in Features
  • Dry Bar
  • High Ceilings
  • Living Room Balcony
  • Open Floorplan
  • Recessed Lighting
  • Stone Counters
  • Storage
Parking Information
  • Assigned

Exterior Features

Pool & Spa Information
  • Community
  • Community

Property / Lot Details

Property Features
  • Bay
  • Mountain(s)
  • Ocean
  • Panoramic
  • Marina
  • Bridge(s)
  • Coastline
  • Harbor
  • City Lights
Lot Information
Property Information
  • Attached
  • Tax Parcel Number: 5333921112

Nearby Businesses

  • Grocery Stores
  • Drug Stores
  • Coffee Shops
  • Restaurants
  • Health & Medical
  • Fitness & Activity
  • Arts & Entertainment
  • Nightlife & Bars
    Browse all businesses in San Diego, CA, 92101

    Tour This Condo

    MONDAY

    15

    DEC

    TUESDAY

    16

    DEC

    WEDNESDAY

    17

    DEC

    THURSDAY

    18

    DEC

    FRIDAY

    19

    DEC

    SATURDAY

    20

    DEC

    SUNDAY

    21

    DEC

    Schedule A Tour
    Ryan Case, Licensed Realtor & Team Lead

    Ryan Case

    Licensed Realtor & Team Lead

    619-314-5333 Contact Ryan Case
    Listing provided by agent Marc Lyman BRE# 01959445 at Pacific Sotheby's Int'l Realty.

    Last Updated: 36 days ago