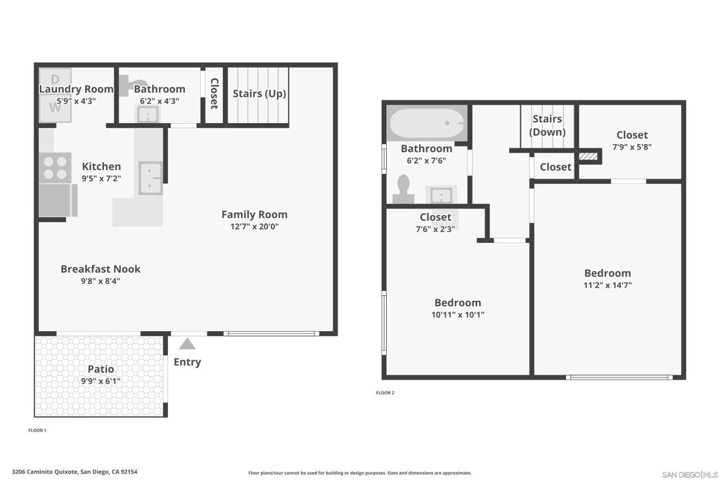
3206 Caminito Quixote

San Diego, CA 92154

$ 415,000

Price

2

Beds

1.5

Baths

966 Sq. Ft.

$430 / Sq. Ft.

332 Days On Market

Favorite

Share

Have You Been Pre-Qualified? Start Now

Listing provided by agent Leo Gonzalez BRE# 01708425 at Foster Hamilton Real Estate.

Last Updated: 296 days ago

Nestled in the desirable neighborhood of Pacifica Hills, this updated 2-bedroom, 1.5-bath townhome offers the perfect blend of comfort and convenience. Step inside to discover laminate wood floors that flow throughout the open living space, leading to a private patio ideal for relaxing or entertaining. The beautifully updated kitchen boasts modern finishes, sleek countertops, and ample cabinetry, making meal preparation a breeze. Both bathrooms have been tastefully renovated, complementing the home’s stylish design. With newly installed windows, the space is filled with natural light while maintaining energy efficiency. A spacious 1-car garage provides plenty of room for parking and storage. The well-maintained community features a sparkling pool for leisurely afternoons and is located close to parks, top-rated schools, shopping centers, and major freeways. It's also a short commute to nearby Navy bases, making this home ideal for both families and professionals. Don’t miss this opportunity to own a delightful home in a prime location!

Show More
Property Type Condominium
Year Built 1974
MLS # 240027814SD
Listing Type Closed
Heating Natural Gas
Pool Community
Laundry Gas Dryer Hookup, In Garage, In Kitchen
Parking Assigned, Garage, Garage - Single Door

Payment Calculator

40% Complete (success)
80% Complete (danger)
20% Complete
80% Complete (danger)
60% Complete (warning)
Principal and Interest
Property Taxes
Homeowners' Insurance
HOA Dues
Mortgage Insurance
Image Calculator Icon Customize Calculations | Compare Mortgage Rates

Property Details for: 3206 Caminito Quixote

Interior Features

Bathroom Information
  • 1 full bath, 1 half bath
Laundry Information
  • Gas Dryer Hookup
  • In Garage
  • In Kitchen
Fireplace Information
  • Living Room
Heating & Cooling
  • Natural Gas

Parking / Garage, Multi-Unit Information, Location Details

Parking Information
  • Assigned
  • Garage
  • Garage - Single Door

Exterior Features

Pool & Spa Information
  • Community
  • Community

Property / Lot Details

Lot Information
Property Information
  • Attached
  • Tax Parcel Number: 6303104238

Nearby Businesses

  • Grocery Stores
  • Drug Stores
  • Coffee Shops
  • Restaurants
  • Health & Medical
  • Fitness & Activity
  • Arts & Entertainment
  • Nightlife & Bars
    Browse all businesses in San Diego, CA, 92154

    Tour This Condo

    MONDAY

    29

    DEC

    TUESDAY

    30

    DEC

    WEDNESDAY

    31

    DEC

    THURSDAY

    1

    JAN

    FRIDAY

    2

    JAN

    SATURDAY

    3

    JAN

    SUNDAY

    4

    JAN

    Schedule A Tour
    Ryan Case, Licensed Realtor & Team Lead

    Ryan Case

    Licensed Realtor & Team Lead

    619-314-5333 Contact Ryan Case
    Listing provided by agent Leo Gonzalez BRE# 01708425 at Foster Hamilton Real Estate.

    Last Updated: 296 days ago